


工事現場情報を現場に持ち込んだ携帯端末を利用し、データを収集。
データはインターネット網を通じて、サーバに転送し、自動集計された情報を現場事務所のパソコンで閲覧、印刷。



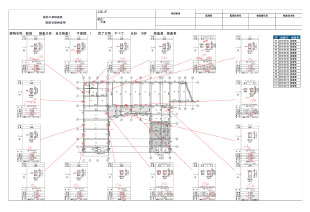
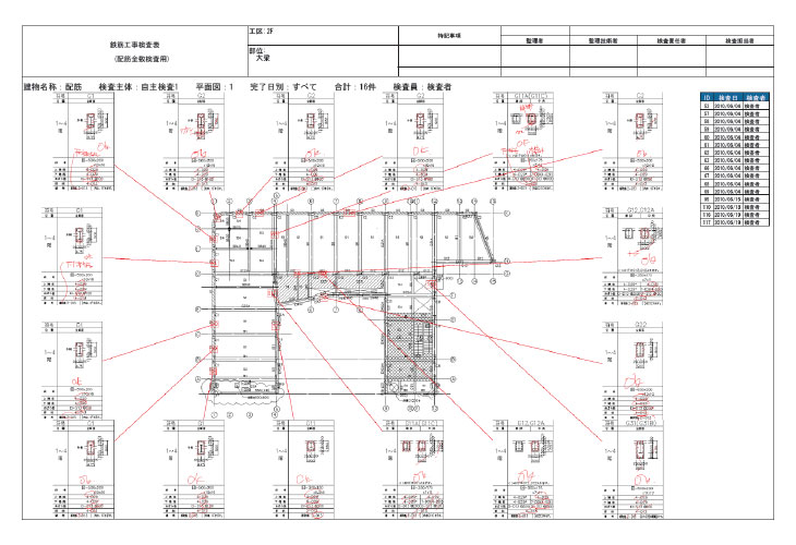
配筋図やデジタルカメラを持ち歩く代わりに、どちらも内蔵済みの携帯端末を持参。
現場への検査時の荷物が格段に減ります。
事務所での配筋写真の整理はなくなり、データ送信後、配筋写真帳票がすぐに出来上がります。
JACIC(一般財団法人日本建物情報総合センター)実施の信憑性確認(改ざん検知機能)検定に合格。
デジタル工事写真の小黒板情報電子化が認められている現場でご利用できます。
JACIC(一般財団法人日本建物情報総合センター)とは
端末の表示図面に専用ペンで紙に書くようにチェック。内容をリストボックスの中から選択し登録。
内臓のカメラで様子を撮影し、写真データを保存することも可能。
データ送信後、PCから業者別にソートをかけて、作業指示書がすぐにできます。